Start
Unser Projekt
Wohnpark Arnoldstein
Grundrisse
Verkaufspreisliste
Beratung und Verkauf
Aktuelles
Umgebung
Kontakt
Suche
Menü
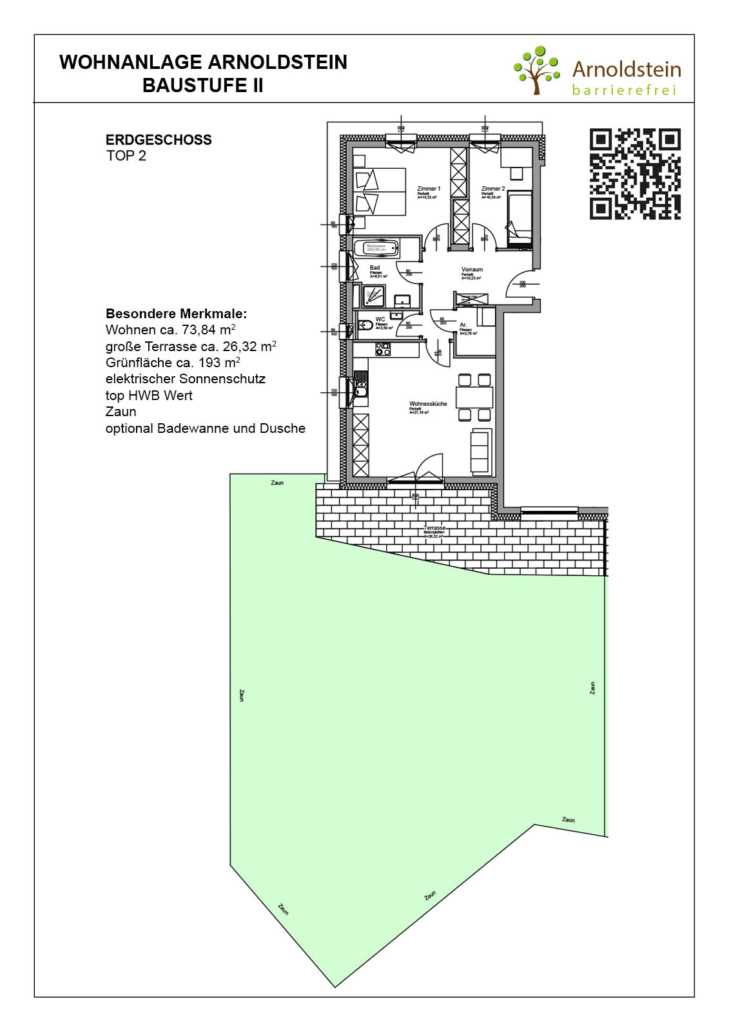
ERDGESCHOSS TOP
02
Nach oben scrollen